|
Ford Expedition 2000-2001 Center Console Rear Integrated
Control Panel Removal
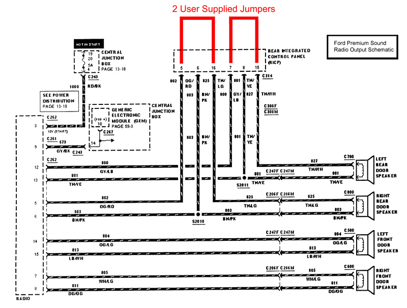
You will need to install these jumpers in order for your rear door speakers
to work.
This is what I had to do after replacing the Ford OEM console with a Havis-Shields
3201 Console.

|